杭州[切换]
  • 杭州
  • 宁波
高品质家居空间解决方案智造者
楼盘信息Real estate information

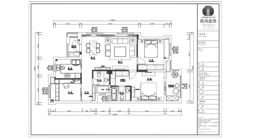
交通紫园

签约户数:12开工户数:12竣工户数:10

交通紫园位于宁波市高新区,项目北望甬江,西依杨木碶河,东邻清水桥路,与世纪大道、江南路等城市主干道遥相呼应,项目总建筑面积约91000平米,主力面积74-136㎡。

预约参观工地查看其它楼盘
0574-83031303
户型分析Apartment layout analysis
户型案例Other apartment layout更多>

装修报价

今日已有507位业主预约

0574-83031303