宁波[切换]
  • 杭州
  • 宁波
高品质家居空间解决方案智造者
楼盘信息Real estate information

左岸尚苑

签约户数:26开工户数:23竣工户数:20

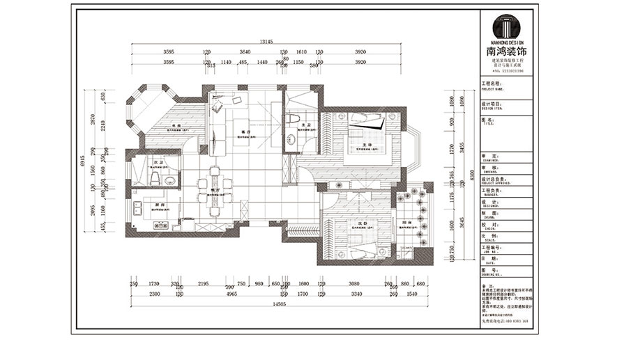
左岸尚苑项目位于鄞州区鄞县大道2599号,雅戈尔服装国际展销中心对面。东临奉化江。由翔鹰置业打造,项目占地约为17000平方米,总建筑面积约为43000平方米,6幢对称围合小高层住宅,主力建筑面积为88—110平米。免费预约左岸尚苑全套设计方案。

预约参观工地查看其它楼盘
0574-83031303
户型分析Apartment layout analysis
户型案例Other apartment layout更多>

装修报价

今日已有507位业主预约

0574-83031303