杭州[切换]
  • 杭州
  • 宁波
高品质家居空间解决方案智造者
楼盘信息Real estate information

五和苑

签约户数:18开工户数:16竣工户数:9

五和苑 交通便利 绿化覆盖面多

预约参观工地查看其它楼盘
0574-83031303
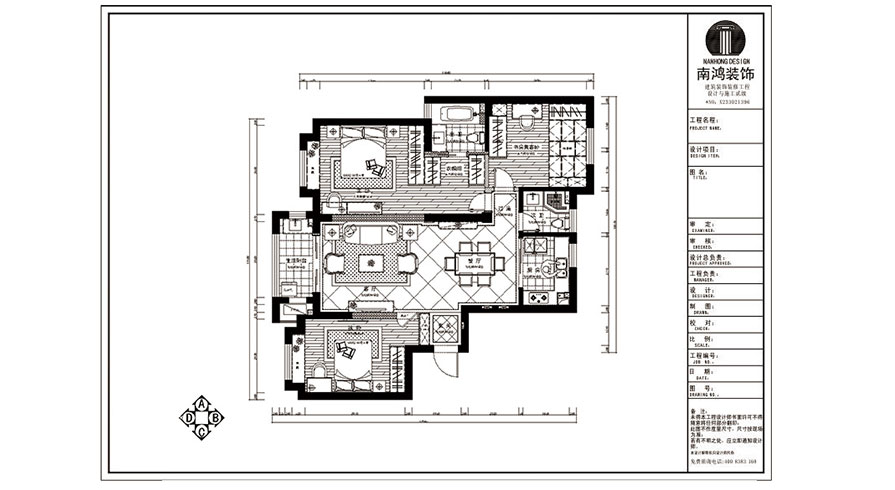
户型分析Apartment layout analysis
户型案例Other apartment layout更多>
  • 五和苑

    简欧 | 三居室 | 110平米

装修报价

今日已有507位业主预约

0574-83031303