杭州[切换]
  • 杭州
  • 宁波
高品质家居空间解决方案智造者
楼盘信息Real estate information

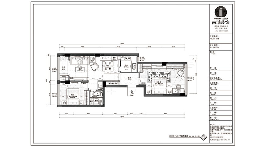
紫玉台花苑

签约户数:11开工户数:10竣工户数:10

紫玉台花苑2期位于江东三江口滨水核心区,东邻徐戎路,南邻江东北路,北临规划道与甬江相邻,西邻规划道路与 紫玉台花苑相邻。项目总建约12.5万方,共约500多户,规划共8幢,建筑面积约139-260m全装修精品住宅,是雅戈尔继紫 玉台花苑之后的2期产品,传承雅戈尔品牌基因,致力于打造高品质社区

预约参观工地查看其它楼盘
0574-83031303
户型分析Apartment layout analysis
户型案例Other apartment layout更多>

装修报价

今日已有507位业主预约

0574-83031303