杭州[切换]
  • 杭州
  • 宁波
高品质家居空间解决方案智造者
楼盘信息Real estate information

雅戈尔

签约户数:11开工户数:10竣工户数:9

雅戈尔御玺,独踞鄞州中央制高点、钱湖北路皇脉中轴,坐享规划中甬城高端商圈核心BSET广场(由SMART商业广场、英国特易购TESCO大型卖场、深国投宁波商业中心三大子商业体构成)、钱湖天地精致都市商业中心,毗邻万达广场城市综合体、南部CBD、鄞州区政府等,天下群雄竞逐之雅戈尔御玺由约300㎡空中豪景花园跃墅—天玺,约600㎡超独栋私家庄园——国玺组成。总占地面积59047.00平米,建筑面积110000.00平米.

预约参观工地查看其它楼盘
0574-83031303
户型分析Apartment layout analysis
户型案例Other apartment layout更多>
  • 雅戈尔

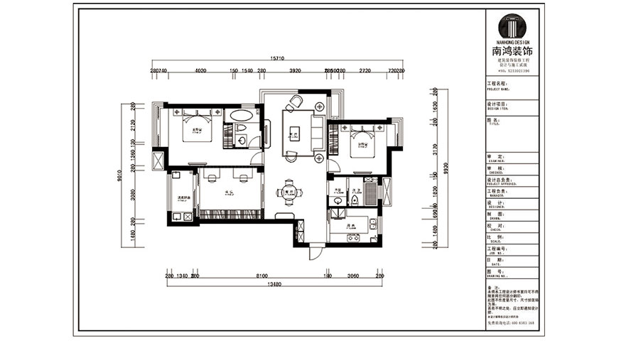
    美式 | 三居室 | 101平米

  • 雅戈尔

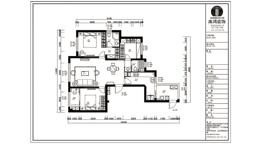
    欧式 | 三居室 | 105平米

  • 雅戈尔

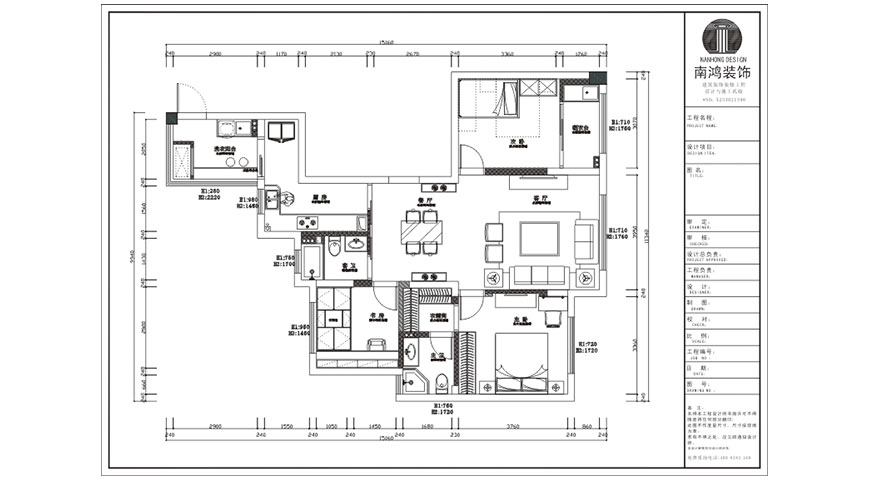
    后现代 | 三居室 | 116平米

  • 雅戈尔

    后现代 | 三居室 | 101平米

装修报价

今日已有507位业主预约

0574-83031303